• Seguici su Instagram
  • Seguici su Instagram

Dettaglio Immobile

Contratto
Vendita
Prezzo
165000
Provincia
PA
Comune
Misilmeri
Zona
Misilmeri
Tipologia
Appartamento
Vani
4
Camere
2
Bagni
2
Classe Energetica
A

Codice
423

Condividi l'annuncio

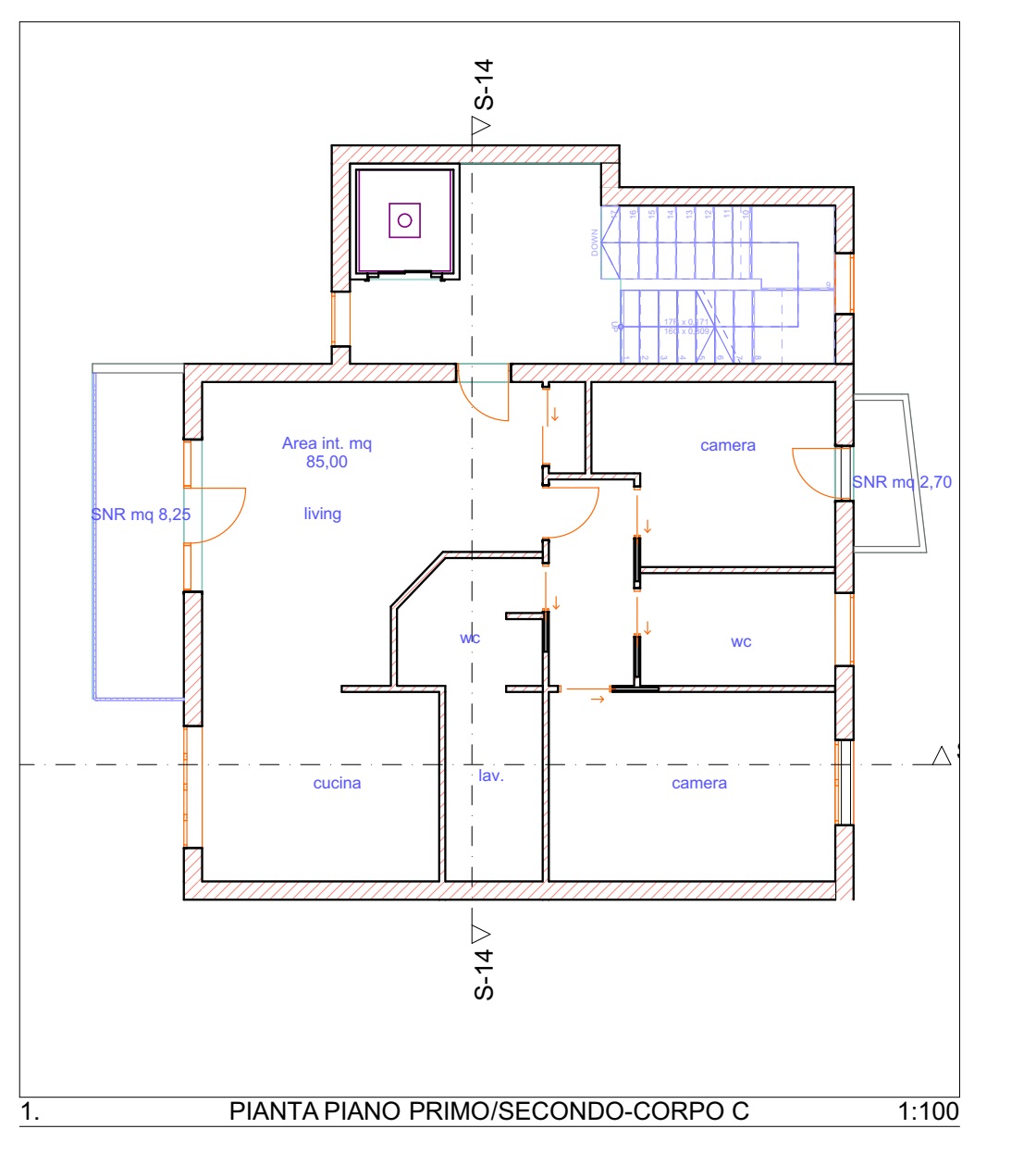
Codice 423- PREZZO EURO 165.000 Ti presentiamo un'appartamento in costruzione in Classe A che unisce comfort, modernità e una posizione centrale,situato a Portella di Mare adiacente il viale principale; questo splendido appartamento quadrivani di 110 mq commerciali posto al piano primo è composto da un'ampia zona living soggiorno/cucina ideale per trascorrere momenti di convivialità con amici e familiari. La zona notte è progettata per garantire il massimo del riposo e della tranquillità. Troverai una camera da letto matrimoniale spaziosa, e una cameretta perfette per i bambini o come studio. L’appartamento dispone di due bagni, uno dei quali è dotato di doccia, , mentre il secondo è un comodo wc. La lavanderia inclusa consente di gestire al meglio le attività domestiche, mantenendo tutto in ordine. Questo immobile è dotato di impianto di riscaldamento autonomo, garantendo un eccellente comfort in tutte le stagioni. Inoltre, la predisposizione per il climatizzatore e l’impianto di allarme ti offriranno sicurezza e comodità. Gli infissi a taglio termico e il cappotto termico a bassa trasmittanza assicurano un notevole risparmio energetico. Posto auto scoperto, possibilità di acquisto separato di una cantina. Visite tutti i giorni previo appuntamento telefonico Agenzia Immobiliare Itaka di Caterina Vitale s.r.l.s Villabate viale Giulio Cesare n. 27/b tel. 091 614 36 89 - cell. 339 870 47 00 Codice 423 - PREZZO EURO 165.000

  • Aria Condizionata
  • Balconi
  • Terrazza
  • Cantina
  • Giardino
  • Ascensore
  • Riscaldamento
  • Arredato
  • Allarme
Torna alla Home